MASA4

UN PISO DE 131M2 EN UN EDIFICIO DEL SIGLO XVII

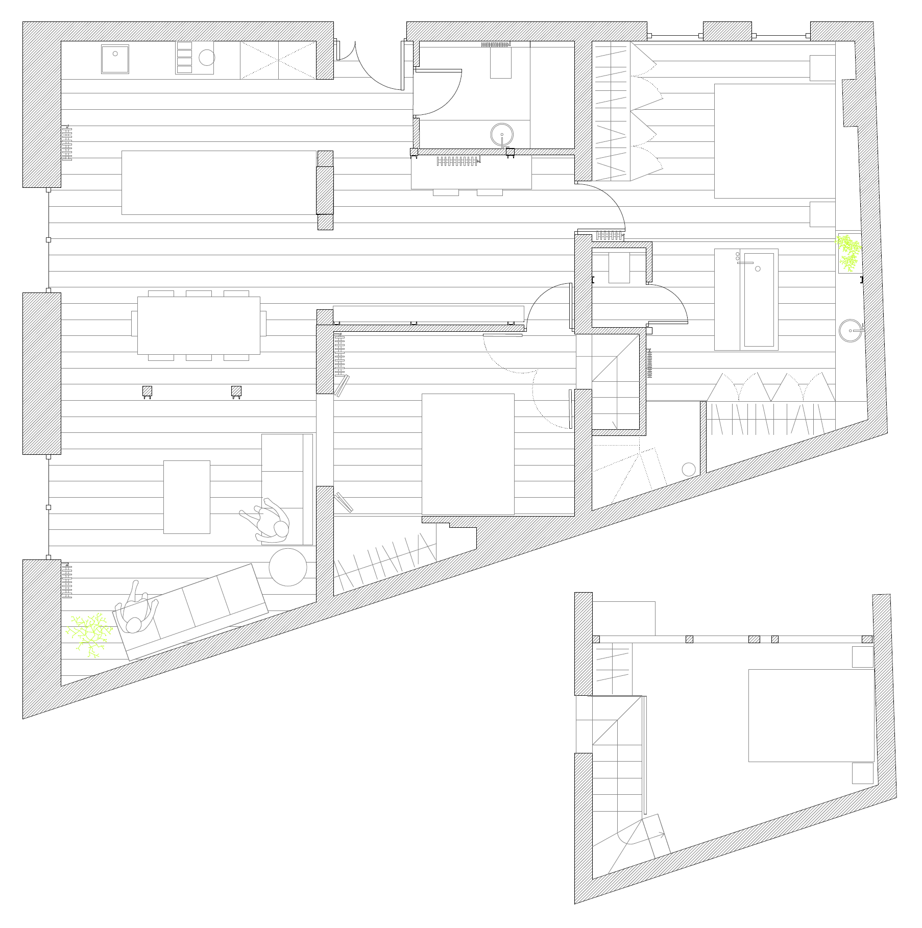
Caraterísticas detalladas

ESPACIOS

  • Openspace Salón / Comedor / Cocina

  • Habitación principal con baño en suite y vestidor

  • Habitación de doble altura que se puede usar como 2 habitaciones independientes

  • Baño de invitados

  • En torno a 20m3 de almacenamiento en los muebles

OTRAS CARACTERÍSTICAS

  • 131 m2 construidos

  • Edificio del XVII

  • 3ª planta exterior con ascensor

  • 2 pisos por planta

  • Altura techos: 3,20m

  • Aire acondicionado

  • Calefacción individual por gas

Entorno